APPARTAMENTO DI MONTAGNA RISTRUTTURATO IN CENTRO A SESTOLA.
In pieno centro, di fronte all'Hotel Nuovo Parco, in una fresca zona residenziale sopraelevata, sede della storica caserma del paese, si trova l'appartamento in oggetto.
L'unità è raggiungibile in auto da Corso Umberto I, tramite una rampa sulla sinistra in cemento armato e sul retro si affaccia su Via della Ville, zona Cinema.
L’appartamento, situato al secondo piano e servito da un ingresso comune con altre sette unità, è raggiungibile attraverso una caratteristica scala in pietra e al suo interno può ospitare fino a 7 posti letto.
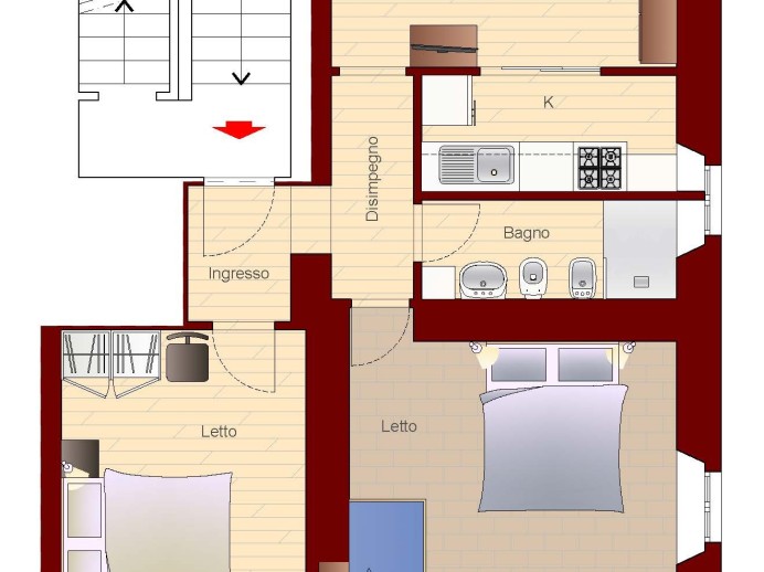
Varcata la soglia, si respira subito un’atmosfera calda e accogliente: un piccolo disimpegno, con pareti rifinite in legno chiaro di abete, ci conduce alla prima camera da letto, matrimoniale, spaziosa e con balcone affacciato sul corso.
Segue una seconda camera, luminosa grazie alle due finestre, attualmente arredata con letto matrimoniale e un letto a castello; il legno elemento dominante, collega con armonia tutti gli ambienti della casa e gli arredi scelti conferiscono un'atmosfera tipica di uno chalet di montagna.
La zona giorno organizzata in zona pranzo e zona relax dove trovano posto due divani e una bella tavola grande posto davanti alla finestra affacciata su Via delle Ville; Una porta scorrevole separa il cucinotto, compatto ma ben organizzato e completo di tutto l’essenziale.
Il bagno è finestrato ed recentemente ristrutturato, con una doccia a filo pavimento per garantire accessibilità e un’ottima gestione dello spazio.
Riscaldamento autonomo a gas metano con radiatori.
Pur non essendo di grandi dimensioni, l’appartamento si distingue per il carattere e l’accoglienza: uno spazio funzionale, curato e pronto a ospitare chi desidera trascorrere un soggiorno all’insegna del relax e della comodità.
La proprietà comprende un posto auto assegnato antistate l'abitazione e un piccolo giardino comune, a lato, dove trascorrere momenti preziosi all'aria aperta.
Il vero punto di forza di questo immobile è sicuramente la sua posizione centrale, proprio all'inizio di Corso Umberto I, oltre al clima fresco che la sua esposizione a nord garantisce.
La zona
A soli 450 m. a piedi da Piazza della Vittoria, la piazza della Fontana, questo appartamento risulta super pratico al raggiungimento dei servizi, dei negozi e delle manifestazioni turistiche che Sestola offre.
Prezzo Stagione Invernale 2025 - 2026
Dal 01/11/2025 al 30/04/2026 = € 3.800,00 (CONSUMI ENERGIA ELETTRICA - GAS - ACQUA - ESCLUSI)
Planimetrie
Altre caratteristiche
- Riferimento : AS9
- Numero Camere: 2
- Posti letto: 6
- Numero Bagni: 1
- Superficie: 76 m2
- Contratto: Affitto Turistico
- Tipologia: Appartamento
- Numero Vani: 4.0
- Posto Auto: Posto Auto
- Cucina: Cucinotto
- Località: Sestola
- Giardino: Comune
- Classe Energetica: G
- Piano: 2° piano
- Riscaldamento: Autonomo
- Distanza dal centro: 450 m
- Stato: Ristrutturato
- 
              - 75 mq
- 3
- 2
 
Appartamento in Estivo a Sestola
Sestola- 
              - 38 mq
- 2
- 1
 
Appartamento in Estivo a Sestola
Sestola - Centro- 
              - 75 mq
- 3
- 2
 
 
												 
                                           
                                           
                                           
                                           
                                           
                                           
                                           
                                           
                                           
                                           
                                           
                                           
                                           
                                           
                                           
                                           
                                           
                                           
                                           
                                           
                                           
                                           
                                           
                                           
                                           
                                           
                                           
                                           
                                           
                                           
                                           
                                           
                                           
                                           
                                           
                                           
                                           
                                           
                                           
                                           
                                           
                                           
                                           
                                           
                                           
                                           
                                           
                                           
                                           
                                           
                                           
                                           
                                           
                                           
                                           
                                           
                                           
                                           
                                           
                                           
                                           
                                           
                                           
                                           
                                           
                                       
                                       
                                       
                                       
                                       
                                       
                                       
                                       
                                       
                                       
                                       
                                       
                                       
                                       
                                       
                                       
                                       
                                       
                                       
                                       
                                       
                                       
                                       
                                       
                                       
                                       
                                       
                                       
                                       
                                       
                                       
                                       
                                       
                                       
                                       
                                       
                                       
                                       
                                       
                                       
                                       
                                       
                                       
                                       
                                       
                                       
                                       
                                       
                                       
                                       
                                       
                                       
                                       
                                       
                                       
                                       
                                       
                                       
                                       
                                       
                                       
                                       
                                       
                                       
                                       
													 
													 
                 
                       
                       
                 
                       
                       
                 
                      